Windsor Terrace Row House


















NameWindsor Terrace Row House
LocationBrooklyn, New York
Year2025
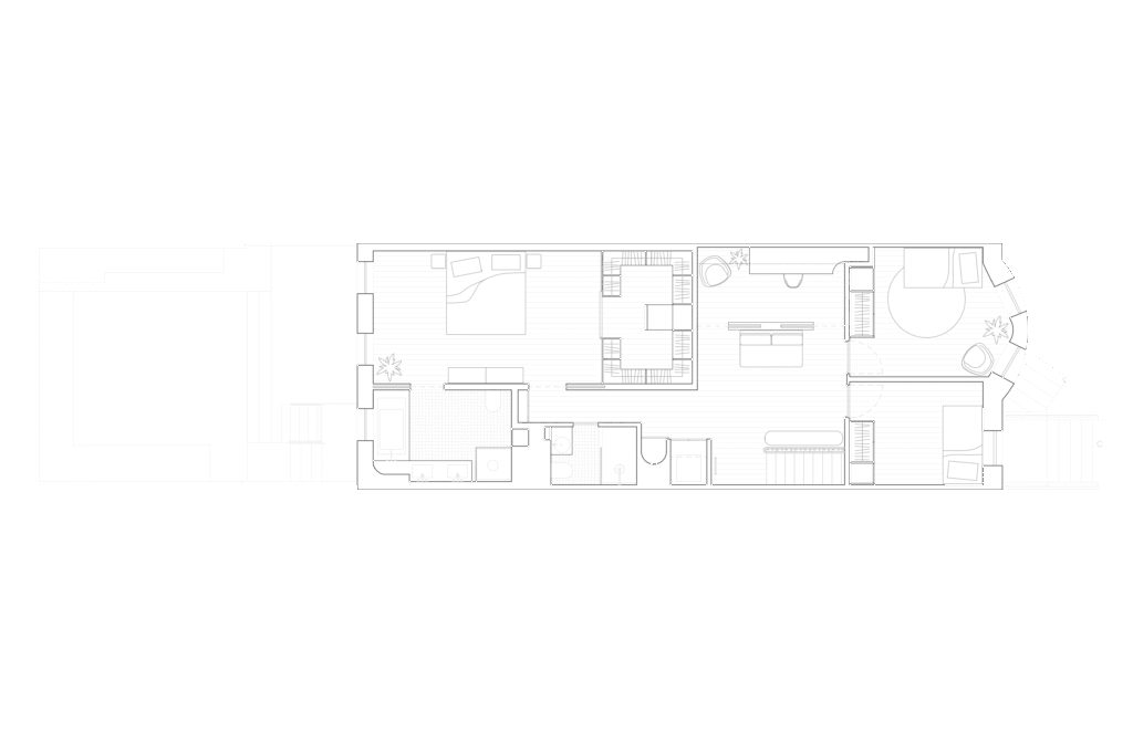
This renovation of a brick row house was carried out in phases, beginning with the lowest floor and progressively working upwards until all three floors of the home were complete. In the design the three levels are joined at the center by a lightwell that delivers natural daylight to a pair of bathrooms and an interior staircase as it travels through the house.
ClientPrivate
TeamDeirdre McDermott, Nicholas McDermott, Pa Ramyarupa, Ryan Sison, Alexis Luna, Jake Lefeber, Yinqing Zhu
























